Скиммер XENOZONE СК.15.8/1 с широкой горловиной и клапаном автодолива является закладным элементом чаши бассейна, облицованного пленочными ПВХ материалами, и предназначен для забора воды с поверхности и передачи ее в систему фильтрации. Особенность конструкции – широкая горловина - позволяет максимально поднять уровень воды в бассейне по сравнению с использованием стандартных моделей.
Модель укомплектована механическим клапаном, который позволяет поддерживать заданный уровень воды в чаше бассейна, а также аварийным переливом для отвода избытка воды.
Поддержание заданного уровня воды в чаше бассейна происходит за счет специального механического клапана (входит в комплект). Для отвода избытка воды при переливе (или при сильном волнообразовании) предусмотрен патрубок для подключения магистрали вывода воды в канализацию, а для сбора плавающего в бассейне мусора скиммер комплектуется съемной корзиной из прочного ABS пластика.
Модели скиммеров КСЕНОЗОН «под пленку» в отличие от моделей для бассейнов с плиточной отделкой стенок, укомплектованы прижимным фланцем и двумя резиновыми прокладками – это позволяет плотно обжать поверхность пленочного покрытия борта и обеспечить надежную гидроизоляцию места установки.
Скиммеры СК.15.8/1 изготавливается из нержавеющей стали марки AISI-316, которая отличается повышенной коррозионной стойкостью в сравнении с AISI 304.
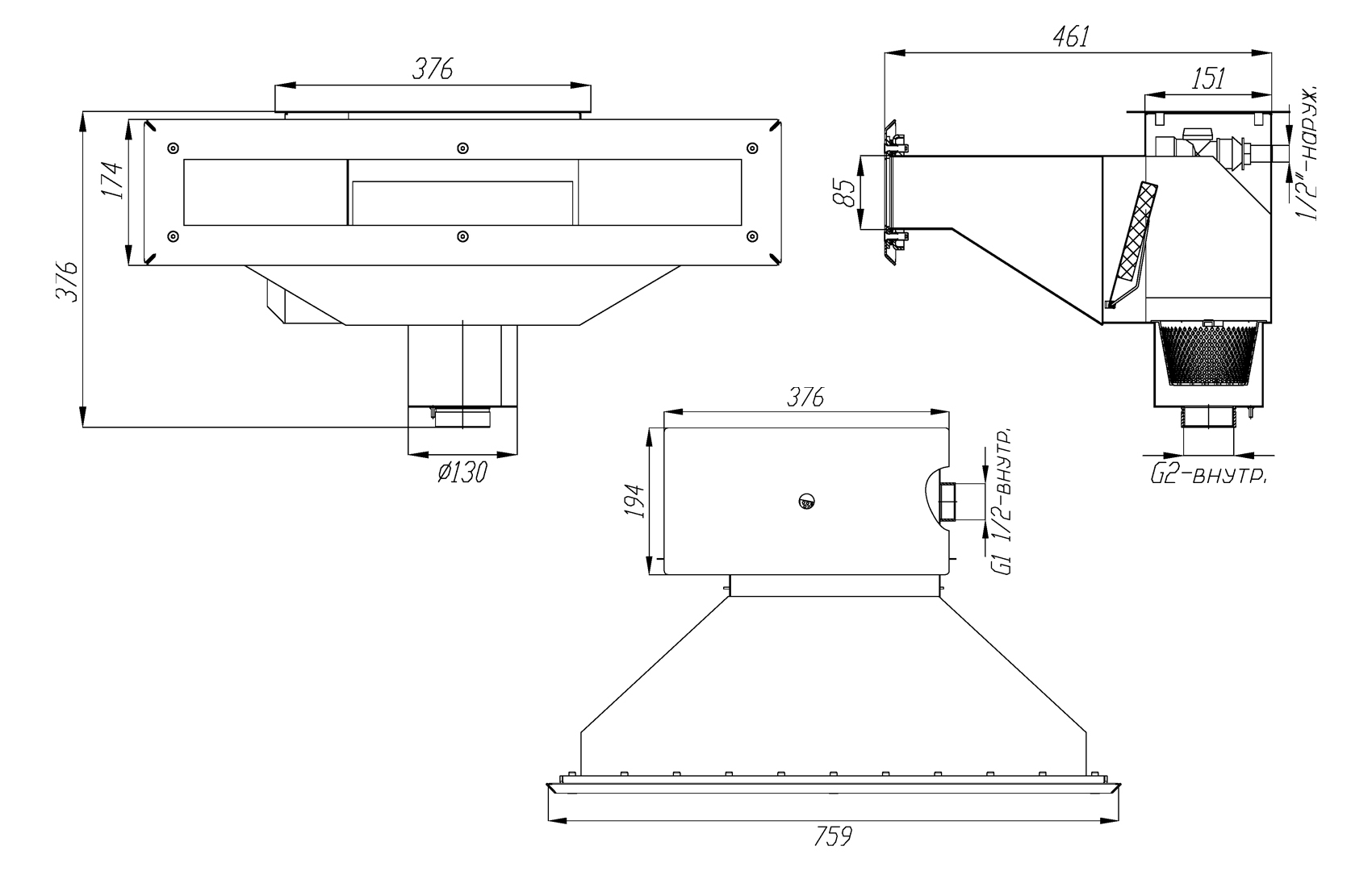
Технические характеристики
- Марка нержавеющей стали: AISI 316;
- Максимальная обрабатываемая площадь поверхности воды: до 40 кв.м;
- Диаметр присоединительного патрубка: 2 дюйма;
- Подсоединение аварийного перелива - внутренняя резьба 1 1/2’’, трубопровод автодолива - наружная резьба 1/2’’.
Рекомендуемая производительность насоса – 10-12 м3/час. Не рекомендуется увеличивать скорость протока воды, так как это приведет к подсосу воздуха в скиммер, «хлюпанью» воды и присасыванию поплавковой заслонки. Если ваш фильтрационный насос имеет бОльшую производительность, увеличьте количество скиммеров.
Особенности конструкции
В состав конструкции закладных скиммеров модели СК.15.8/1 входят следующие детали и комплектующие:
- Стальной корпус;
- Корзина для сбора мусора;
- Прижимной фланец;
- Резиновая прокладка – 2 шт.
- Зеркально полированная лицевая панель;
- Съемная верхняя крышка;
- Плавающая заслонка;
- Клапан автодолива
Корпусные элементы изделия выполнены из нержавеющей стали. Съемный мусороприемник изготовлен методом 3D печати из ABS пластика.
Условия эксплуатации
В случае, если в бассейне несколько скиммеров, для поддержания уровня воды достаточно установить один с автодоливом, остальные - стандартные.
Важно: в странах ЕАЭС (России, Беларуси, Армении, Казахстане и Киргизии) подобные изделия из нержавеющих сталей разрешены к реализации без предоставления документов о прохождении обязательной сертификации.
