Встраиваемые узкие скиммеры являются неотъемлемым элементом системы фильтрации. Забирая через приемное окно воду из чаши бассейна, они выполняют функцию очистки поверхностного слоя воды от частиц плавающего мусора. Для сбора и периодического удаления собранного мусора в комплект устройства входит съемная корзина из ABS-пластика.
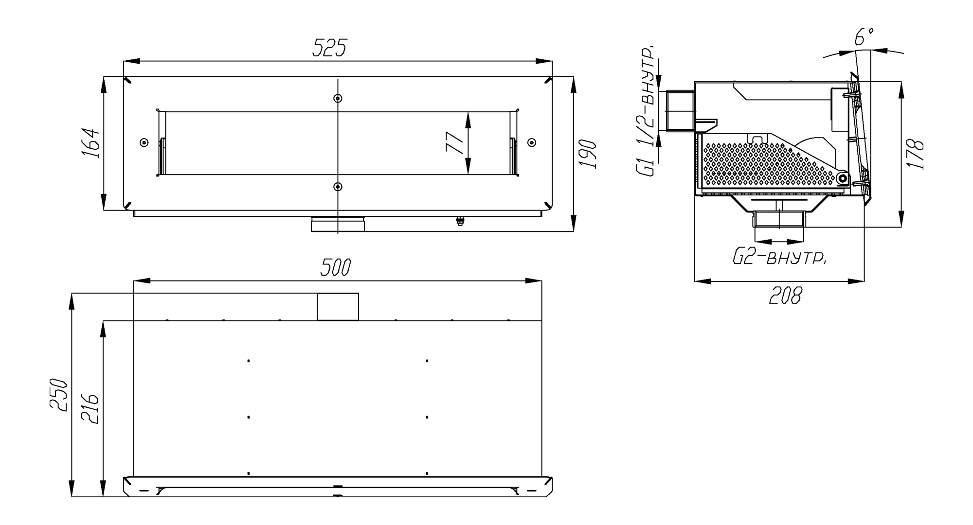
Узкие скиммеры XENOZONE модели СК.40.1 имеют уклон горловины 6 градусов, поэтому подходят для установки в стационарных композитных бассейнах. Скиммер оснащен аварийным переливом для сброса избыточного количества воды в канализацию при активном волнообразовании или переполнении чаши.
Применяя узкие скиммеры, можно максимально поднять уровень воды в бассейне по сравнению с использованием стандартных моделей.
Обратите внимание, что данная модель не предусматривает подключение ручного пылесоса через насадку. При использовании узких скиммеров, для подключения пылесоса рекомендуется предусмотреть отдельную форсунку для подключения пылесоса.
Основные технические характеристики
- Марка нержавеющей стали: AISI 304;
- Максимальная обрабатываемая площадь поверхности воды: до 40 кв. м;
- Диаметр присоединительного патрубка: 2 дюйма.
- Подсоединение магистрали аварийного перелива: 1 1/2 дюйма.
Рекомендуемая производительность насоса – до 10 м3/час. Не рекомендуется увеличивать скорость протока воды, так как это приведет к подсосу воздуха в скиммер, «хлюпанью» воды и присасыванию поплавковой заслонки. Если ваш фильтрационный насос имеет бОльшую производительность, увеличьте количество скиммеров.
Особенности конструкции
В состав конструкции закладных скиммеров модели СК.40.1 входят следующие детали и комплектующие:
- Стальной корпус;
- Корзина для сбора мусора;
- Прижимной фланец;
- Резиновая прокладка – 2 шт.
- Зеркально полированная лицевая панель;
- Плавающая заслонка
Корпусные элементы изделия выполнены из нержавеющей стали. Съемный мусороприемник изготовлен методом 3D печати из ABS пластика.
Условия эксплуатации
Чтобы не допустить повреждения металлических деталей изделия агрессивными химическими веществами, скиммеры XENOZONE из стали AISI 304 не рекомендуется использовать в бассейнах с морской водой и установленными электролизерами.
Важно: в странах ЕАЭС (России, Беларуси, Армении, Казахстане и Киргизии) подобные изделия из нержавеющих сталей разрешены к реализации без предоставления документов о прохождении обязательной сертификации.
